Wellness, ruimte en luxe onder één dak – voor 10 levensgenieters.
Ontsnap naar de weelderige rust van de Boerderij Villa Wellness, een luxe vakantievilla geschikt voor maximaal 10 personen. Deze villa biedt het ultieme in ontspanning en privacy, dankzij de uitgebreide Spa & Wellness verdieping. Met vier slaapkamers, drie badkamers (inclusief toiletten), en twee extra aparte toiletten, verdeeld over drie verdiepingen, is deze villa perfect voor een ontspannen verblijf met familie of vrienden. De master bedrooms van de Boerderij Villa Wellness zijn voorzien van Hespera bedden.
Luxe en comfort in elke ruimte
Begane grond
Op de begane grond vindt u een ruime, stijlvol ingerichte woonkamer voorzien van een moderne tv. De open keuken is uitgerust met hoogwaardige inbouwapparatuur, zoals een Quooker, vaatwasser, en een royale koel-vriescombinatie. Via de openslaande deuren in de woonkamer stapt u direct naar buiten op de overdekte veranda met terras, voorzien van een Luxe Kamado BBQ (slow cooking) en omringd door een prachtig aangelegde tuin. Verder zijn er op de begane grond twee slaapkamers, beide met ensuite badkamers, evenals een apart toilet.
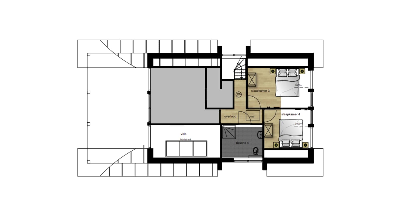
Eerste verdieping
De eerste verdieping biedt twee slaapkamers, en één badkamer. De tweede slaapkamer is ingericht met een stapelbed en twee éénpersoonsbedden, ideaal voor kinderen of extra gasten.
Ontspanning in de Spa & Wellness verdieping
In de volledig uitgeruste Spa & Wellness ruimte vindt u alles wat u nodig heeft voor ultieme ontspanning. Geniet van een duik in het binnenzwembad, ontspan in de sauna, of laat uw zorgen wegdrijven in het ligbad met bubbelfunctie. De Spa & Wellness verdieping beschikt tevens over een doucheruimte en een apart toilet, zodat u in volledige privacy kunt relaxen.
Duurzaam en comfortabel
De Boerderij Villa Wellness is volledig gasloos en uitgerust met duurzame technologieën zoals waterbesparende douchekoppen en LED-verlichting. Toch levert u niet in op comfort: de villa beschikt over airconditioning en vloerverwarming, waardoor het in elk seizoen aangenaam vertoeven is.
Een luxe landelijke Uitstraling
Met zijn rietgedekte kap en twee charmante dakkapellen straalt de Boerderij Villa Wellness een landelijke en tegelijkertijd luxe sfeer uit.
Let op: Elke villa is uniek, dus let op dat de tuinindeling, woninginrichting en kleurstelling kunnen afwijken van de getoonde afbeeldingen op de website. De mate van luxe en comfort blijft echter altijd gegarandeerd.
Totaalprijs op basis van een tweepersoons bezetting



